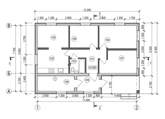
Самый востребованный проект! Размеры дома 12,2 х 8,4 м. Высота этажа 2,94 м. Данный вариант проекта предполагает наличие в доме тамбура 4,7; прихожей 6,9; гостиную 9,5 и кухню 10,2 чаще всего объединяют; трех жилых комнат 8,6/10,8/11,9; санузла 3,1; котельной 7,7 м.кв. Периметр чаще всего делают прямоугольным, что дает дополнительную площадь вместо навеса 8м.кв, в это помещение выносят с/у. И получается общая площадь 81,6 м2. Утепленная фундаментная плита 300 мм. Кровля вальмовая. Сроки строительства: фундаментная плита - 3-4 дня; набор достаточной прочности бетоном -5-7дней.
Кладка наружных и внутренних стен - 5 дней; устройство армопояса - 1 день; набор достаточной прочности бетоном - 5 дней; устройство кровли - 5-7 дней. Итого 25-28 дней. Стоимость проекта из Термоблока 40см. под отделку на 2023г с учетом вывода канализации и заведенной водой - 3 129 668 рублей. Остекление VEKA 5ти камерные с наружней отделкой- 183 887. Входные двери - 55 000. Электрика под ключ - 148 769. Отопление-водоснабжение (теплый пол, стяжка теплого пола, газовый котел , вся разводка воды) - 396 618. Выгребная яма -50 000.
Итого 3 963 942 рубля! Предоставим партнеров по отделке
Размер комнат:
Стоимость:
Стоимость под самоотделку:
Выбор местоположения
Мы свяжемся с Вами в течение дня.