Каркасный дом в стиле Барнхаус 131,3м2 отличается уникальным шармом и сочетанием природных и современных элементов. Он станет не только красивым, но и практичным местом для жизни и отдыха.
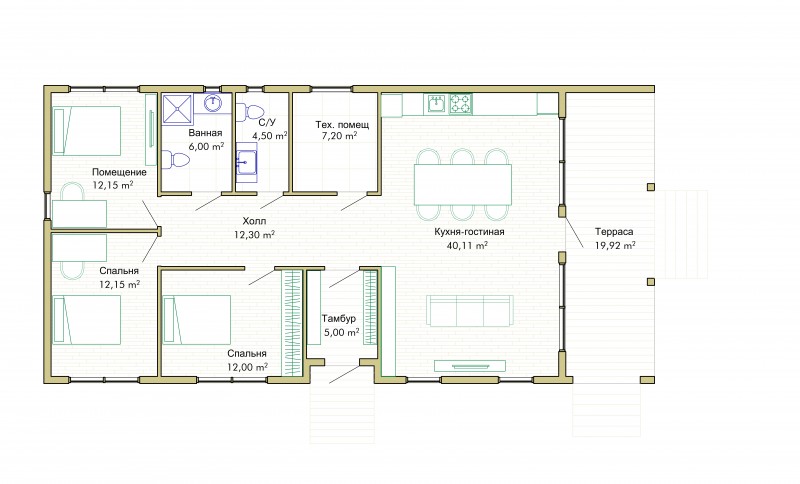
Общая площадь дома 131,3м2
Теплый контур 111м2
Кухня-гостиная – 1
Спальня – 3
С/узел – 2
Тех. помещение - 1
Тамбур – 1
В стандартную комплектацию входит:
-переливной септик на 6м3.
-все инженерные коммуникации, включая теплый пол
-идеально ровный пол (п/сухая стяжка)
-идеально ровные стены (гипсокартон),
-фасад и кровля КЛИК ФАЛЬЦ + планкен (скрытый крепеж)
-5-ти камерные окна VЕКА с хорошей фурнитурой и мультифункциональным покрытием.
Ждем ваши заявки! С удовольствием воплотим вашу мечту в жизнь!
Выбор местоположения
Мы свяжемся с Вами в течение дня.